Sher Kirkpatrick
♦
Realty Pro West, LLC
♦
360-909-8636
♦
agentsher@gmail.com
♦
view as gallery
Last Lot (8,677 sqft) with Unobstructed View of Vancouver Lake due to protected Wetlands in this gated community. 2% BAC.
6704 NW 26th Court, Vancouver, WA 98665
♦
$399,000
♦
info
♦
map
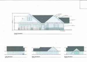
Save time and Money! 8,677 sqft Ready to build with approved engineered plans for a 2406 sqft 1 level 3 bed 3 bath w/ bonus over a 3 car garage. Area in front of the lot will be a park.
Last View Lot in Gated Community
Unbuildable Natural Habitat
Enjoy the view
Private Access to Lake Recreation
1 level 2/ bonus above garage
MLS 757966782 | Brokered by Realty Pro West, LLC
Sher Kirkpatrick | Lic #74868
MLS 757966782
♦
$399,000
Save time and Money! 8,677 sqft Ready to build with approved engineered plans for a 2406 sqft 1 level 3 bed 3 bath w/ bonus over a 3 car garage. Area in front of the lot will be a park.
Ask me about our builder offering to build this plan for under $1,000,000 (including lot purchase). 5-10% down Construction Loan available for approved buyers. Buyer has the option of using their own builder and plans. The area in front of the lot is protected wetlands and will eventually be a park. This gated community offers private access to Vancouver Lake for Recreational use. The evening sunset is breathtaking and peaceful. Homes next door with this view are well over $1,000,000 in this community.
This eflyer was created at WWW.MONDOFLYERS.COM • Phone: 650.681.2200 • Loyalmobs, Inc., 1950 W Corporate Way #25320, Anaheim, CA 92801
Use subject to terms and conditions
| legal notices
| privacy policy
| DMCA notice
Information deemed reliable but not guaranteed. Subject to omissions, prior sale, change or withdrawal without notice. Buyer to verify all information.
All property information herein is copyrighted by the listing broker and/or the MLS system and/or their agents.
PORTIONS PATENT PENDING. © 2026 Loyalmobs, Inc., All rights reserved.
Mondoflyers, MondoClip, Loyalmobs, 'Hang Your SOLD Sign Sooner', and 'Premium agent-to-agent email choice of top producers' are trademarks of Loyalmobs, Inc.
Other trademarks are property of their respective owners.
REALTOR® is a registered trademark of the National Association of REALTORS.